Bergblumenstrasse

Jahr   2018

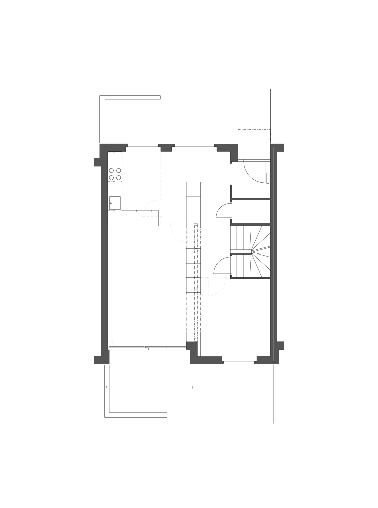
Das Reiheneinfamilienhaus wurde 1967 erstellt. Beim Umbau gestaltete man das Erdgeschoss grosszügiger und erweiterte die bestehende Treppe ins Dachgeschoss.